öffentlich

Alte Realschule



Kindertagesstätte Alte Realschule - Hardheim 

Bauherr
Gemeinde Hardheim

 

Standort
Hardheim

 

Fertigstellung
2025

 

Projektteam
Rafael Grups, Viktoria Lenz

 

Leistungen
Entwurf, Genehmigung, Ausführungs- und Detailplanung, Ausschreibung 

 

Projektbeteiligte
IB Wilhaug, Ingenieurbüro Leinberger, Ingenieurbüro Fichter

Dieses denkmalgeschützte Gebäude, das einst als Schule diente, wird nun behutsam für die Nutzung einer Kindertagesstätte mit bis zu 5 Gruppen umgebaut.
 
Dabei bleibt die historische Raumstruktur weitgehend erhalten, um den authentischen Charakter des Hauses zu bewahren und den Charme der ursprünglichen Architektur zu erhalten.
Gleichzeitig werden alle notwendigen Anpassungen für eine moderne pädagogische Einrichtung umgesetzt.

So entsteht ein Ort, an dem Kinder in einem traditionsreichen Ambiente sicher und zeitgemäß betreut werden können, während die bewegte Geschichte des Gebäudes sichtbar und erlebbar bleibt.

Diese sensible Umnutzung ist ein zeitgemäßer und notwendiger Beitrag zur Nachhaltigkeit: Anstatt einen Neubau zu errichten, werden Ressourcen geschont und graue Energie im Bestandsgebäude weiter genutzt.

Bartenstein



Feuerwehrhaus West 
Schrozberg - Bartenstein

 

Bauherr
Stadt Schrozberg

 

Standort
Schrozberg - Bartenstein

 

Fertigstellung
2021

 

Nutzfläche
340 qm

 

Projektteam
Rafael Grups, Claus Thümmel, Melanie Silberzahn

 

Leistungen
Entwurf, Genehmigung, Ausführungs- und Detailplanung, Ausschreibung, Vergabe, Bauleitung 

 

Projektbeteiligte
IB Sausele, IB Göggerle, Pfahler+Schweizer, Bauunternehmen Wengertsmann, Klöpfer Holzbau, Reinhardt Holzbau, Ackermann Fensterbau, Wirsching, Karl-Schmidt, TFM Estrich, 

 

Im Jahr 2021 wurde erfolgreich die Zusammenlegung der Feuerwehrstandorte Bartenstein, Riedbach und Ettenhausen am neuen Standort in Bartenstein abgeschlossen. Das nachhaltige Gebäudekonzept betont den Holzbau und setzt auf ressourcenschonende Bauweise.

Die Architektur zeichnet sich durch eine dunkle Holzfassade aus, die nicht nur ästhetisch ansprechend ist, sondern auch einen Beitrag zur Nachhaltigkeit leistet. Die Gebäudeform folgt dem Verlauf der Topografie und den Anforderungen aus dem Grundriss.

Die Grundrissgliederung umfasst eine klare Aufteilung in Fahrzeughalle, Nebenraumzone und Seminarraum, was eine effiziente Nutzung ermöglicht. Die Fahrzeughalle mit stützenfreier Überspannung wurde durch eine gedämmte Holzrahmenkonstruktion mit Brettschichtholzträgern realisiert.

Dieser Ansatz unterstreicht nicht nur die ökologische Verantwortung des Projekts, sondern auch das Engagement für nachhaltige Bauweisen. Das Gebäude demonstriert damit nicht nur die erfolgreiche Zusammenlegung der Feuerwehrstandorte, sondern auch einen zeitgemäßen Beitrag zur Holzbauarchitektur und nachhaltigen Stadtentwicklung im ländlichen Raum.

Fotos: @sanderfotodesign


Feuerwehrhaus Sulzberg-Tahl


Feuerwehrhaus - Sulzberg-Thal (A)

Das Büro Dietrich l Untertrifaller wurde nach erfolgreicher Wettbewerbsplanung mit der Auführung für das Feuerwehrhaus Sulzberg-Thal (AT) beauftragt. Das massive Kellergeschoss ausgenommen ist das gesamte Bauwerk in Holzbauweise errichtet.

Projektleitung
Dipl. Ing (FH) Rafael Grups
Leistungen
Projektleitung, Wettbewerbsbearbeitung, Entwurf, Genehmigung, Ausführungs- und Detailplanung, Bauleitung
Projektbeteiligte
Statik Beton: Mader Flatz, Statik Holz: Merz Kley, Haustechnik: Pflügl Roth

FW Herbolzheim



Feuerwehrhaus - Neudenau-Herbolzheim 

Bauherr
Stadt Neudenau

 

Standort
Neudenau-Herbolzheim

 

Fertigstellung
2027

 

Projektteam
Rafael Grups, Melanie Zenkert, Mergim Kukaij, Paul Völker

 

Leistungen
Entwurf, Genehmigung, Ausführungs- und Detailplanung, Ausschreibung, Vergabe, Bauüberwachung 

 

Projektbeteiligte
Thome Ingenieurbüro für Baustatik, Töniges GmbH, Bunse GmbH, Remstal Elektroplanung, Ingenieurbüro Dr. Schäcke + Bayer, Ingenieurbüro Fichter

Dieses Feuerwehrhaus wird auf einem äußerst anspruchsvollen Grundstück realisiert: schmal geschnitten, in Hanglage und direkt an einer Landesstraße gelegen.
 
Durch seine Lage am Ortseingang setzt das Gebäude einen prägnanten Akzent im dörflichen Umfeld und dient als wichtiger Baustein in der Ortsentwicklung. Während das massiv ausgeführte Sockelgeschoss mit Seminarraum an das Gelände anschließt und über aufgefächerte Stützmauern in die Landschaft verzahnt ist, erstreckt sich darüber eine moderne Holzkonstruktion, die als weithin sichtbare Kubatur das Erscheinungsbild prägt.

Die Dachflächen sind begrünt, um sowohl die Einbindung ins Landschaftsbild zu verbessern als auch das Mikroklima zu fördern. Zudem gewährleisten eine Wärmepumpe und eine Photovoltaikanlage eine ressourcenschonende Energieversorgung.

So entsteht ein öffentliches Gebäude, das in seiner Formgebung auf die besonderen Grundstücksgegebenheiten reagiert, im Inneren alle erforderlichen Funktionen für die Feuerwehr vereint und zugleich mit hoher Nachhaltigkeit sowie ortsbildprägendem Charakter überzeugt.

FW Spielbach



Feuerwehrhaus - Schrozberg-Spielbach 

Bauherr
Stadt Schrozberg

 

Standort
Schrozberg-Spielbach

 

Fertigstellung
2025

 

Projektteam
Rafael Grups, Melanie Zenkert

 

Leistungen
Entwurf, Genehmigung, Ausführungs- und Detailplanung, Ausschreibung, Bauüberwachung 

 

Projektbeteiligte
Pfahler & Schweizer, IB Metzger, IB Göggerle, Rw Bauphysik

Dieses Feuerwehrhaus in Holzbauweise vereint eine funktionale und klar strukturierte Architektur mit einem zeitgemäßen, nachhaltigen Energiekonzept. Die Fassade kombiniert farblich akzentuierte Holzoberflächen in Rot mit dezenten Grautönen, wodurch das Gebäude im ländlichen Kontext markant, aber dennoch harmonisch in Erscheinung tritt. Im Inneren schaffen die natürliche Materialwahl und eine effiziente Raumaufteilung ein modernes, ansprechendes Arbeitsumfeld für die Feuerwehrkräfte.
 
Ergänzt wird das Konzept durch den Einsatz einer Wärmepumpe und einer Photovoltaikanlage, die eine ressourcenschonende Energieversorgung gewährleisten.
 
So entsteht ein Gebäude, das nicht nur den hohen Anforderungen an Funktionalität und Sicherheit gerecht wird, sondern auch beispielhaft für zukunftsfähiges Bauen im ländlichen Raum steht.

Rinderfeld



Feuerwehrhaus
Niederstetten - Rinderfeld

 

Bauherr
Stadt Niederstetten

 

Standort
Niederstetten - Rinderfeld

 

Fertigstellung
2022

 

Nutzfläche
320 qm

 

Projektteam
Rafael Grups, Melanie Silberzahn, Attila Tufan

 

Leistungen
Entwurf, Genehmigung, Ausführungs- und Detailplanung, Ausschreibung, Vergabe, Bauleitung 

 

Projektbeteiligte
IB Metzger, Pfahler+Schweizer, Bauunternehmen Steinbrenner, Metallbau Uhl, Guttroff Fensterbau, Herrmann Torbau, Karl-Schmidt, Hägele Estrich, Schreinerei Wagner, Patric Sprung 

 

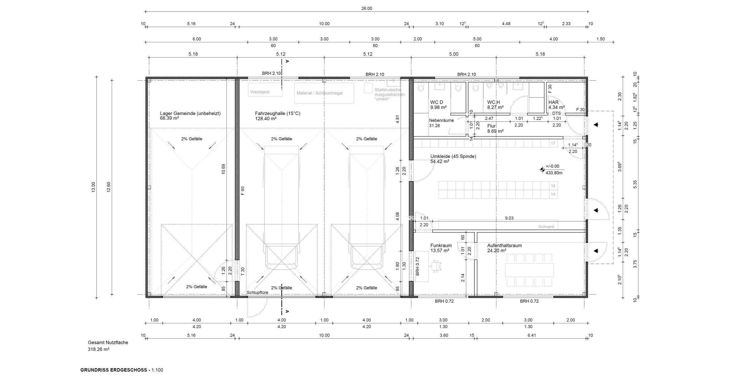
Die Stadt Niederstetten realisiert gemäß der aktuellen Feuerwehrbedarfsplanung ein neues Feuerwehrhaus für die Abteilung Rinderfeld und Umgebung.

Das Gebäude umfasst eine Fahrzeughalle mit zwei Stellplätzen für die Feuerwehr sowie einen Lagerbereich für die Gemeinde. Westlich an die Fahrzeughalle schließen sich alle erforderlichen Nebenräume für die Feuerwehr sowie der Eingangsbereich an, welcher durch ein Vordach geschützt ist. Die kompakte Gebäudeform mit einem effizienten Grundriss entspricht dem Ziel des Projekts, eine äußerst wirtschaftliche Bauweise zu realisieren.

Die Dimensionen des Gebäudes belaufen sich auf 26,00 x 13,00 Meter, wobei eine Stahlkonstruktion mit aussteifenden Betonwandscheiben in der Fahrzeughalle geplant wurde. Sowohl Dach als auch Fassade wurden mithilfe gedämmter Stahlblech-Sandwichpaneele realisiert.

Die Beheizung erfolgt über einen Nahwärmeanschluss an eine benachbarte Hackschnitzelheizung. In der Fahrzeughalle wird hierbei ein Lufterhitzer zur Erwärmung eingesetzt.

  • 1 022 Grundriss

Volksschule Wallenmahd


Volksschule Wallenmahd - Dornbirn (A)

Das Büro Dietrich l Untertrifaller wurde nach erfolgreicher Wettbewerbsplanung mit der Erweiterung und Generalsanierung der Volksschule Wllenmahd in Dornbirn (AT) beauftragt. Die Sanierung umfasste ebenfalls die Erweiterung um eine Kantine und eine Bücherei.

Projektleitung
Dipl. Ing (FH) Rafael Grups
Leistungen
Projektleitung, Ausführungs- und Detailplanung, Bauüberwachung
Projektbeteiligte
Statik: gbd, Haustechnik: Moser, Bauphysik: Weithas